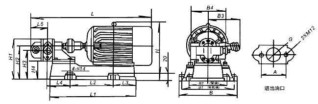
ZYB-18.3~ZYB-83.3外型、ZYB渣油泵安裝尺寸安裝尺寸及重量
![]() |
|
型號(hào)
|
L
|
L1
|
L2
|
L3
|
L4
|
L5
|
H
|
H1
|
H2
|
H3
|
H4
|
B
|
B1
|
B2
|
B3
|
B4
|
A
|
G
|
重量
Weight(kg) |
|
ZYB-18.3
|
566
|
391
|
239
|
86
|
75
|
86
|
230
|
176
|
130
|
109
|
40
|
259
|
225
|
190
|
155
|
192
|
52
|
G3/4" |
62.15
|
|
ZYB-33.3
|
618
|
416
|
256
|
86
|
82
|
93
|
285
|
186
|
140
|
119
|
50
|
279
|
245
|
190
|
180
|
192
|
52
|
G3/4" |
66.8
|
|
ZYB-55
|
595
|
391
|
239
|
86
|
89.5
|
100.5
|
230
|
176
|
130
|
109
|
40
|
259
|
225
|
190
|
155
|
192
|
70
|
G1" |
64.15
|
|
ZYB-83.3
|
652
|
416
|
256
|
94
|
102
|
113
|
285
|
186
|
140
|
119
|
50
|
279
|
245
|
190
|
180
|
192
|
78
|
G11/2" |
70.15
|
ZYB-200~ZYB-960外型、ZYB渣油泵安裝尺寸安裝尺寸及重量
![]() |
|
型號(hào)
|
L
|
L1
|
L2
|
L3
|
L4
|
n×φ
|
H
|
H1
|
H2
|
H3
|
H4
|
B
|
B1
|
B2
|
B3
|
B4
|
D
|
D1
|
D2
|
n×d
|
重量
Weight(kg) |
|
ZYB-200
|
709
|
577
|
419
|
58
|
90
|
4×φ16
|
355
|
314
|
168
|
202
|
50
|
326
|
290
|
240
|
190
|
214
|
φ50
|
φ110
|
φ140
|
4×M12
|
135
|
|
ZYB-300
|
883
|
715
|
502
|
80
|
124
|
4×φ22
|
423
|
378
|
198
|
240
|
70
|
390
|
340
|
280
|
210
|
228
|
φ70
|
φ123
|
φ155
|
6×M14
|
173
|
|
ZYB-483.3
|
972
|
795
|
565
|
890
|
124
|
4×φ22
|
465
|
378
|
198
|
240
|
70
|
450
|
400
|
290
|
255
|
228
|
φ70
|
φ123
|
φ155
|
6×M14
|
213
|
|
ZYB-633
|
1074
|
901
|
629
|
100
|
145
|
4×φ22
|
500
|
455
|
258
|
275
|
70
|
450
|
400
|
285
|
255
|
280
|
φ100
|
φ158
|
φ190
|
8×M14
|
274.5
|
|
ZYB-960
|
1099
|
900
|
635
|
100
|
145
|
4×φ22
|
525
|
455
|
283
|
275
|
70
|
470
|
420
|
285
|
285
|
280
|
φ100
|
φ158
|
φ190
|
8×M14
|
304.5
|
ZYB1.5/2.0-7.5/2.0型泵外型、ZYB渣油泵安裝尺寸安裝尺寸
![]() |
|
型號(hào) |
L |
L1
|
L2
|
L3 | B1 | B2 | B3 | H |
H1
|
H2
|
G | φD | 4-φd |
| ZYB-1.5/2.0 | 193.5 | 45 | 75 | 138.5 | 114 | 138 | 95 | 132 | 67.5 | 87 | G3/4" | 18 | 10 |
| ZYB-2.1/2.0 | 198.5 | 48 | 78 | 142.5 | 124 | 154 | 110 | 164.5 | 86 | 112 | G1" | 18 | 10 |
| ZYB-3/2.0 | 198.5 | 48 | 78 | 142.5 | 124 | 154 | 110 | 164.5 | 86 | 112 | G1" | 18 | 10 |
| ZYB-4.2/2.0 | 220 | 58 | 88 | 155 | 160 | 190 | 140 | 205 | 107.5 | 140 | G11/4" | 28 | 12 |
| ZYB-7.5/2.0 | 239 | 65 | 98 | 164.5 | 160 | 190 | 140 | 205 | 107.5 | 140 | G1 1 /2" | 28 | 12 |
| ZYB-12/2.0 | 360 | 106 | 136 | 257 | 190 | 220 | 210 | 256 | 136 | 178 | G2" | 32 | 14 |
ZYB-1.5/2.0~ZYB-12/3.5外型、ZYB渣油泵安裝尺寸安裝尺寸重量
![]() |
|
型號(hào)
|
L
|
L1
|
L2
|
L3 |
L4
|
H
|
H1
|
H2
|
H3
|
H4
|
B
|
B1 | B2 | B3 | B4 |
G
|
D
|
n×φ
|
重量 |
|
ZYB-1.5/2.0
|
582
|
486
|
339
|
47.5
|
55
|
290
|
190
|
145
|
125.5
|
58
|
293
|
257
|
190
|
180
|
95
|
G3/4"
|
φ36
|
4×φ18
|
56
|
|
ZYB-2.1/2.0
|
586
|
493
|
344
|
49
|
56
|
302
|
210
|
157
|
131
|
45
|
293
|
257
|
206
|
180
|
110
|
G1"
|
φ50
|
4×φ18
|
63.5
|
|
ZYB-3/2.0
|
605
|
499
|
349
|
49
|
56
|
310
|
210
|
157
|
131
|
45
|
333
|
297
|
206
|
190
|
110
|
G1"
|
φ50
|
4×φ18
|
77.5
|
|
ZYB-4.2/2.0
|
720
|
585
|
420
|
54
|
65
|
373
|
255
|
190
|
157.5
|
50
|
368
|
332
|
242
|
210
|
140
|
G11/4"
|
φ70
|
4×φ18
|
121
|
|
ZYB-7.5/2.0
|
780
|
637
|
448
|
60
|
75
|
378
|
260
|
195
|
162.5
|
55
|
368
|
332
|
242
|
210
|
140
|
G11/2"
|
φ70
|
4×φ18
|
136
|
|
ZYB-12/2.0
|
1020
|
862
|
616
|
78
|
103
|
468
|
321
|
243
|
201
|
65
|
416
|
380
|
272
|
255
|
210
|
G2"
|
φ95
|
4×φ18
|
173
|



















